Zpět na výběr bytů
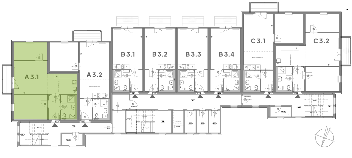
BD - 3. np. - A 3.1
| Stav | Volný |
| Obytná plocha bytu | 56,8 m2 |
A 3.1
| 1 ZÁDVEŘÍ | 4,1 m2 |
| 4 KOUPELNA +WC | 4,8 m2 |
| 5 OBÝVACÍ POKOJ + KK | 24,6 m2 |
| 6 LOŽNICE | 12,0 m2 |
| 7 POKOJ | 8,7 m2 |
| 8 KOMORA | 2,4 m2 |
| 9 PARKOVACÍ STÁNÍ | P05 |
Cena: 3 844 700 Kč
Cena včetně DPH
Pozice bytu v budově
Ke stažení